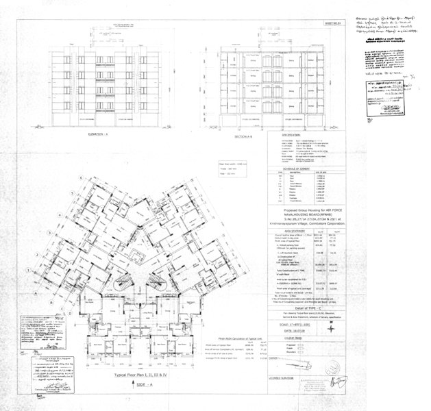
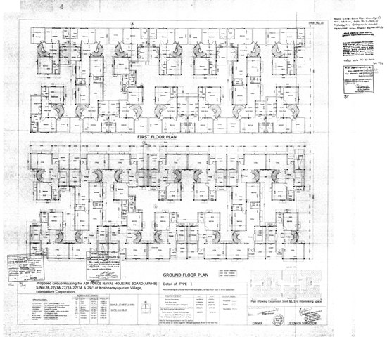
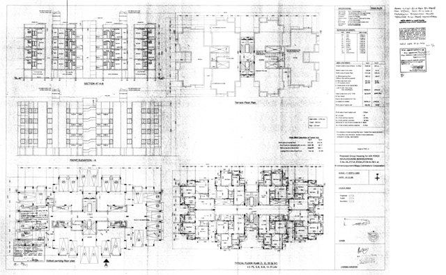
Coimbatore Project : Drawings